| Ãö©óÂ@¿Ä | «È¤áªA°È | Ápô§Ú­Ì

| ¤½¥q²¤¶ | ²£«~¤¶²Ð | ·P´ú¾¹°t®M»ö¿ö| ¼Æ¦r­±ªOªí | ·P´ú¾¹§Þ³NÀ³¥Î»P¿ï«¬ | Ápô§Ú­Ì | ­º ­¶ |

§Þ³N¿Ô¸ß¼ö½u:
029-85363083 13008415610
::À£¤OÅܰe¾¹Á`¶×::
.³q¥Î«¬À£¤OÅܰe¾¹
.¹jÂ÷¦¡À£¤OÅܰe¾¹
.ñZ¸Ë«¬À£¤OÅܰe¾¹
.°ª·Å«¬À£¤OÅܰe¾¹
.¤u·~±±¨îÀ£¤OÅܰe¾¹
.¤@Å髬²G¦ìÅܰe¾¹
.¤ÀÅ髬²G¦ìÅܰe¾¹
.·L®tÀ£Åܰe¾¹
.¹jÂ÷¦¡®tÀ£Åܰe¾¹
.¤u·~±±¨î®tÀ£Åܰe¾¹
.´¼¼z«¬À£¤OÅܰe¾¹
.°ªÀW°ÊºAÀ£¤OÅܰe¾¹
.À£¤O¶}Ãö
.®tÀ£¶}Ãö
.²G¦ì¤¸¶}Ãö
¡@
::À£¤O·P´ú¾¹Á`¶×::
.µ´À£·P´ú¾¹
.°ªºë«×À£¤O·P´ú¾¹
.·L«¬À£¤O·P´ú¾¹
.°ª·ÅÀ£¤O·P´ú¾¹
.¹jÂ÷¦¡À£¤O·P´ú¾¹
.·L®tÀ£·P´ú¾¹
.Âù½¤®tÀ£·P´ú¾¹
.²G¦ì¦¡·P´ú¾¹
¡@
¿ï¥Î»¡©ú¡G ¹êª«¹Ï¨Ò¡G
1. ¤£ù׿û±µÀY¡A¾T¦Xª÷´ßÅé¶ì½¦¼Q¶î¡A¥~´ß¨¾Å@µ¥¯ÅIP65¡C
2. ¥i¤À¬°«ü¼Ð¦¡¡B¼Æ½X¦¡©M²G´¹Åã¥Ü¤è¦¡¡C
3. ²{³õª½±µ¦w¸Ë¡AµL¶·¦«¬[µ¥»²§U³]¬I¡C
4. ±µ½uºÝ¤l¥X²{¡A¨Ï¥Î¸û¬°¤è«K¡C
5. ¥i»P½¤¤ù¹jÂ÷¾¹²Õ¦¨­@»G¡A­@·Å«¬Åܰe¾¹¡C
6. ²{³õÅã¥Üª½Æ[¡A¨Ï¥Î¤è«K¡C
7. ¦¹Åܰe¾¹¬°¨¾Ãz«¬Åܰe¾¹¡C
§Þ³N°Ñ¼Æ¡G
¶q µ{¡G0¡ã6KPa¡ã60MPa
·Ç½T«×¡G¡Ó0.1%¡Ó0.25%¡Ó0.5%
¨Ñ¹q¡G24VDC¡]12¡ã30¡^VDC
¿é¥X¡G¡]4¡ã20¡^mA
¨Ï¥ÎÀô¹Ò·Å«×¡G¡]¡Ð20¡ã80¡^¢J
í©w©Ê¡G¡Ó0.2%
¤¶­±¡GM20¡Ñ1.5©Î¥Î¤á¦Û¿ï
¨Ï¥Î¤¶½è¡G¹ï316µL»G»kªº²GÅé¡B®ðÅé
¨¾Ãz¼Ð»x¡GExia II CT5
¥~«¬µ²ºc¡G ±µ½u¤èªk¡G
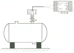
À³¥ÎÁ|¨Ò¡GA ºÞ¹D¤W¦w¸Ë B ®e¾¹¤W¦w¸Ë
C »PJBPK¡X¢»«¬¤G¦¸»ö¿ö³s±µ¨Ã¥ÎRS-232/485¤¶­±Áp±µ¦@±±¾÷¡A¹ê²{¦Û°Ê¤Æ´ú¶q¤Î±±¨î¡C

·s ±Ó ¶l ½c


¦a§}¡G¦è¦w¥«ªø¦w¥_¸ô40¸¹¹q¤l¤j¼Ó407«Ç
¹q¸Ü¡G¡]029¡^85363083 85226221 13008415610
¶Ç¯u¡G¡]029¡^85261713
E-MAIL¡Gxinmin@51yali.com